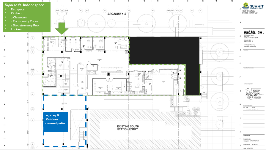
The Space.
1830 Broadway, Suite 102C, Seattle WA 98122
NOW OPEN
Vibrant and Urban Setting in Seattle’s Capitol Hill Neighborhood
Front Door: Broadway
Back Door: Cal Anderson Park
Capitol Hill Station Community
Light Rail Transportation
Seattle Central College
Seattle University
Capitol Hill Farmer’s Market
Arts, Culture, Food, and more..
“Another essential aspect of community that affects individual wellbeing is the infrastructure—the physical spaces and services that meet the community’s needs.”
NOW OPEN
1830 Broadway, Suite 102C
Seattle, WA 98122

